Terrain Forges-les-bains 590 m2
FORGES LES BAINS 91470
169 000 € *
* Honoraires à la charge du vendeur
Proposé par votre agence :
5 rue du Docteur Babin
91470 FORGES LES BAINS
Réf : 965
Situé dans un environnement privilégié proche du centre de Forges-les-Bains ,
beau terrain plat de 590 m² exposé sud .
Lot arrière de 24,6 ML de façade
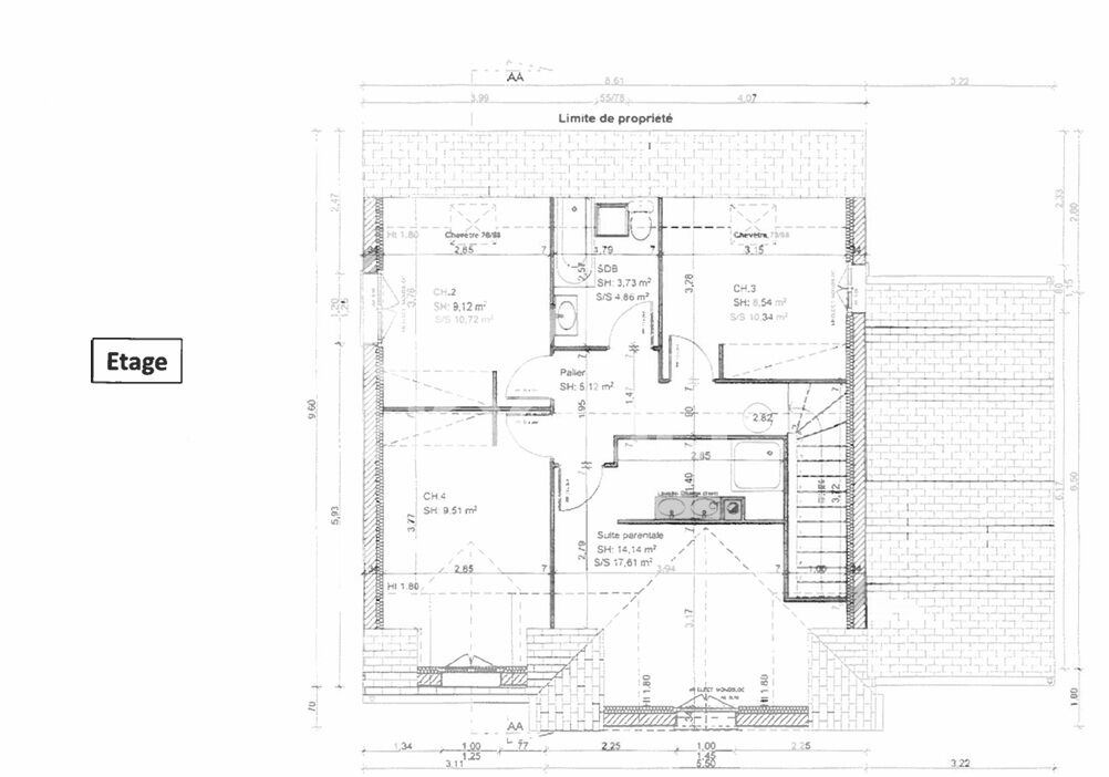
Exemple d'implantation ci-joint pour une maison de 120 m² habitable environ avec
4 chambres... Voir plus
590 m²
Terrain Forges-les-bains 590 m2
Descriptif
Réf : 965
Situé dans un environnement privilégié proche du centre de Forges-les-Bains ,
beau terrain plat de 590 m² exposé sud .
Lot arrière de 24,6 ML de façade
Exemple d'implantation ci-joint pour une maison de 120 m² habitable environ avec
4 chambres... Voir plus
590 m²
Fiche technique du bien
Bilan énergétique
GES non communiqué
Les informations sur les risques auxquels ce bien est exposé sont disponibles sur le site Géorisques : www.georisques.gouv.fr
Simuler votre prêt immobilier avec notre partenaire
Le quartier
5 rue du Docteur Babin
91470 FORGES LES BAINS
Les horaires
Lundi
09h00 - 12h00 / 14h00 - 19h00
Mardi
09h00 - 12h00 / 14h00 - 19h00
Mercredi
09h00 - 12h00 / 14h00 - 19h00
Jeudi
09h00 - 12h00 / 14h00 - 19h00
Vendredi
09h00 - 12h00 / 14h00 - 19h00
Samedi
09h30 - 12h00 / 14h00 - 18h00
Dimanche
Fermé
